PAST PROJECTS

Rose Villa Old Town Barnsley

Rose Villa is a completely rennovated 4/5 bedroom victorian villa situated in the historic 'old town' conservation area of Barnsley. The substantial property retains period character features yet provides superb contemporary 21st century living for a growing family.


The property comprises of

  • Main entrance & reception Hall
  • Lounge / sitting room
  • Study
  • Large family room with French doors to rear patio and garden
  • Large family breakfast kitchen / oak units / intergrated appliances / Fench doors to patio and garden
  • Utility room with access to rear patio and garden
  • WC / cloakroom
  • Secondary hall and entrance / storage room
  • Feature oak staircase with three quarter landing to first floor

 

  • Large open landing area / sitting area / study area / bedroom 5
  • Master bedroom with dressing area and en-suite shower room
  • Bedroom 2 with en-suite shower room
  • Two further large double aspect, double bedrooms to the rear.
  • House bathroom

 

  • Private enclosed walled garden to rear with lawns and boarders
  • Large patio with steps to elevated lawn
  • Rear double door access to large garage
  • Parking for several vehicles to front elevation
  • Front & side garden areas

Gray Home 46 Huddersfield Road

Gray Home, 46 Huddersfield Road is a large Victorian Villa that was completely rennovated and refurbished by Keptcastle Homes in 2011. The property provides 3 large reception rooms, breakfast kitchen, utility and sun room to the private rear garden. Five large bedrooms, two with en-suite bathrooms complete this stunning family home situated in the conservation area of 'Old Town' in Barnsley

Dovecliffe View

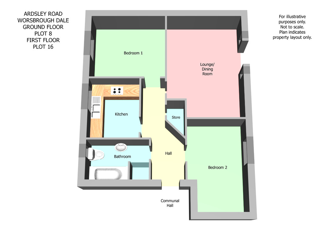
Dovecliffe View Apartments are situated in an established and popular residential area. The development looks out over Dovecliffe from the Ardsley Road frontage. Dovecliffe is an attractive landscape area situated on the fringe of old woodland, which stretches between Worsbrough Dale, Wombwell and Hoyland. Dovecliffe View is approximately two miles from Junction 36 of the M1 and a similar distance from Barnsley Town Centre.

 

The development is now fully occupied predominantly by owner occupiers. Occassionally rental apartments in various sizes and configuations become available. A selction of floor plans are shown below.

 

If you have a rental requirement please contact Keptcastle Estates using the contacts details provided to check for availability. Please note that opportunites are rarely available at Dovecliffe View.

Garden Court Apartments

Garden Court is a development of 16 apartments overlooking parkland in close proximety to Junction 37 of the M1.

The homes, laid out over 4 floors and served with two lifts proved to be an instant hit and were fully reserved prior to completion.

Although over ten years since completion Garden Court is still regarded as one of the most desirable apartment complexes in Barnsley.

Meadow View

Meadow View, Church Hill Royston is a distinctive development of four bedroom homes set in extensive landscaped grounds.

 

The homes offered a choice of sizes designed to suit the modern family, all offering fitted kitchens, en-suite bathrooms garage and private driveway. The development overlooked green space to the front and far reaching veiws of green fields to the east.